
5月的北京,气温还在持续爬坡,房地产市场却率先迎来了一波热潮:
市场供应:北京7项目取证 将带来近4450套新房供应
5月,北京楼市7个项目取得了预售证,这意味着,短期内,这7个项目将为市场带来近4450套供应。
从取证项目来看,6个项目位于远郊,而位于 南四环的中粮天恒·天悦壹号则属于豪宅产品,对于刚需客户来说,上车难度较大,此外,本次取证项目中碧桂园·京源著、京投发展·璟悦府为限竞房、星悦雅园为共有产权房。

01
豪宅产品
中粮天恒·天悦壹号别名:天悦名苑
均价:80000元/m²
主力户型:4居(建面126㎡) 4居(建面150㎡) 4居(建面175㎡)
项目地址:丰台南四环地铁新宫站南500米
物业类别:叠拼
装修状况:毛坯

126㎡ 4室2厅2卫1厨 户型图

150㎡ 4室2厅3卫1厨户型图

175㎡ 4室2厅3卫1厨户型图
点评:1000万左右的价格,买一个可以满足全家需要的四室三卫的大房子,从实用性来看,中粮天恒·天悦壹号性价比还是很高的。
02
政策性住房
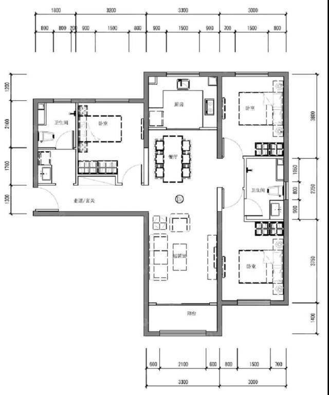
碧桂园·京源著 别名:珑祥府二期
价格:26000.00元/㎡起
主力户型:3居(建面90㎡) 3居(建面125㎡)
项目地址:延庆百泉路与规划二路交汇处
物业类别: 洋房,限竞房
装修状况:带装修

90㎡ 3室2厅1卫1厨户型图

125㎡ 3室2厅1卫1厨户型图
星悦雅园 别名:星悦雅园
均价:22700 元/㎡
主力户型:88㎡——118㎡两、三居
项目地址:怀柔京承高速北侧,杨雁路东侧
物业类别:共有产权房
装修状况:带装修

88平2室2厅1卫户型图

118平3室2厅2卫户型图
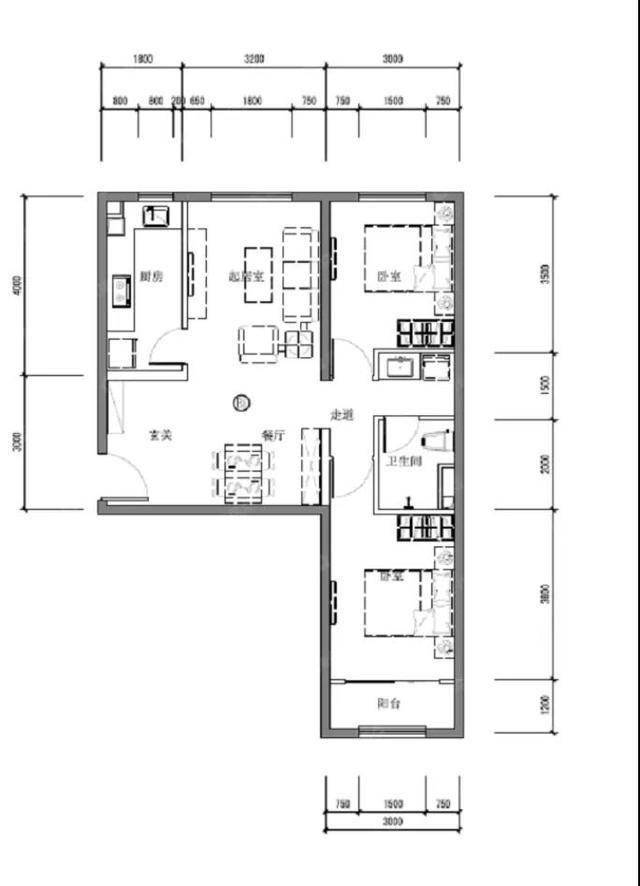
京投发展·璟悦府 别名:洳玉家园
价格:32600元/m²
主力户型:2居(建面80㎡) 3居(建面96㎡) 3居(建面102㎡)
项目地址:平谷迎宾环岛北行200米
物业类别:普通住宅
装修状况:毛坯

80平2室2厅1卫1厨户型图

96平3室2厅1卫1厨户型图

102平3室2厅1卫1厨户型图
点评:虽然价格具备优势,但这三个项目不能回避的天然 硬伤在于地段位置太偏,通勤成本较高,刚需自住的话,需要谨慎考虑。
03
洋房产品
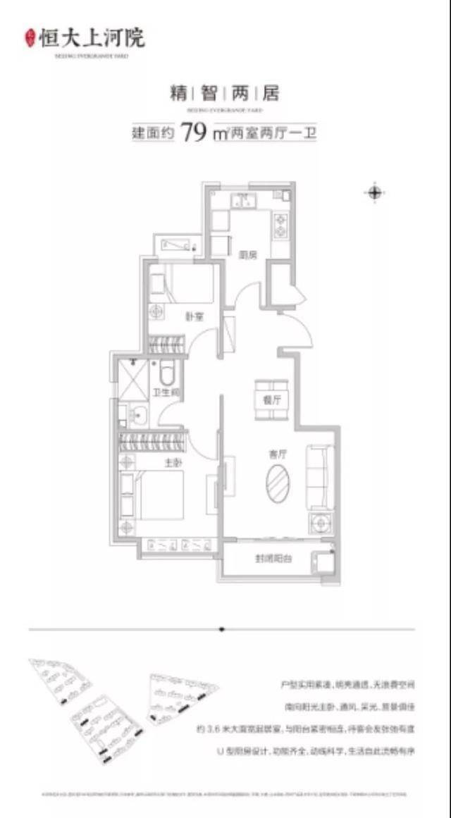
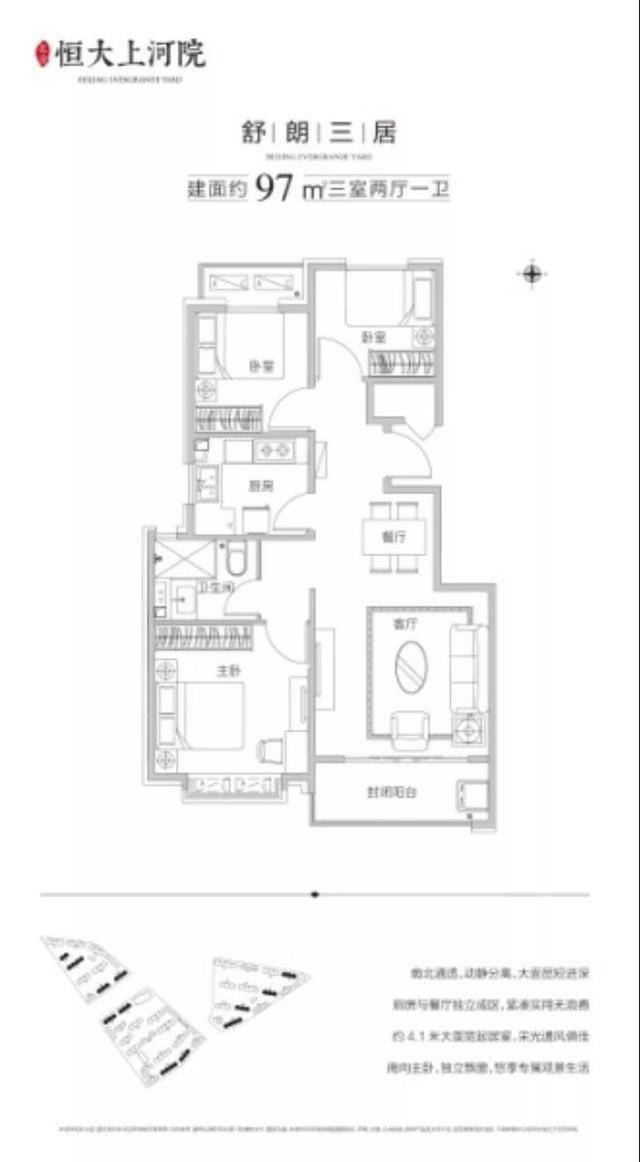
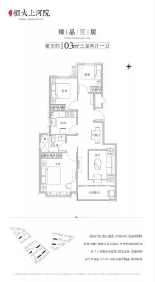
恒大上河院 别名:上河院小区
价格:27500.00元/平方米起
主力户型:2居(建面79㎡) 3居(建面97㎡) 3居(建面103㎡)
项目地址:密云经济开发区科技路东侧
物业类别:洋房
装修状况:无

79平两室两厅一卫户型图

97平三室两厅一卫户型图

103平三室两厅一卫户型图
点评:综艺节目《 向往的生活》第一季取景地就在 北京密云,当黄磊和 何炅第一次走进拍摄的小院时就说了一句:“要不,等我们走的时候,把这儿买下来吧。”可见, 密云真的是宜居好地方。
04
别墅产品
龙湖·云河砚 别名:汀澜家园
价格:40000元/平方米
主力户型:3居(建面90㎡) 3居(建面105㎡) 4居(建面120㎡)
项目地址: 顺义仁和镇临河村
物业类别:洋房,叠拼
装修状况:无

90平三室两厅两卫户型图

105平三室两厅两卫户型图

120平四室两厅两卫户型图
玖瀛府 别名:麓鸣花园
价格:待定
主力户型:4居(建面192㎡) 4居(建面196㎡) 4居(建面255㎡)
项目地址:昌平南邵镇南金路7号院
物业类别:联排,叠拼,合院
装修状况:毛坯,带装修

192平下叠户型图

196平下叠图

联排255平户型图
点评:今年,改善大潮重新回归北京市场,别墅类产品成交数据亮眼,在市场上推出的一众别墅产品中,龙湖·云河砚凭借超级面宽、玖瀛府凭借价格优势能否在别墅产品的“群雄争霸”中取得佳绩,还留有悬念。
将近四千五百套房子上新!对于购房者来说,可选范围着实不少,那么,现在是不是买房的好时机呢?接下来,小编总结了最近北京市场的土地拍卖情况以及政策层面的动态,帮您更好的做决定。
土地:北京首批集中供地以1110亿元收官
5月11日,历时两天的北京首次集中供地落下帷幕,本次推出的29宗住宅用地全部成交,共揽金约1110亿元。
点评:这个5月,北京的土地市场成为当之无愧的焦点,从竞拍结果来看,未来入市售价将大部分集中在5-6万以上,这意味着,北京房价还非常具备“想(shang)象(zhang)”空间。
人口:常住人口2189.3万 北京七人普数据出炉
5月19日, 北京市第七次全国人口普查主要数据结果出炉。截至2020年11月1日零时,北京全市常住人口为2189.3万人。
点评:北京到底有多少北漂?七人普给出了答案:841.8万人。但在落户门槛较高、生活成本较大、逃离 北上广深的浪潮之下,这841.8万北漂究竟能有多少转化为购房需求,仍值得观察。
超13万人申请北京积分落户 落户指标仅6000个
点评:想靠积分落户拿到北京户口越来越难了!
金融:再提 房地产税或已进入最后倒计时
5月11日, 财政部、全国人大常委会预算工委、住房城乡建设部、税务总局负责同志在京主持召开房地产税改革试点工作座谈会,听取部分城市人民政府负责同志及部分专家学者对房地产税改革试点工作的意见。
点评:热议许久的房地产税要来了吗?此刻,脚步声已越来越近。